noch was für User - die dxf ist 2D - das Material + die Materialstärke muss man bei der Bestellung da immer separat angeben !
Beiträge von GIGIMAN
-
-
-
ACAD 2020 - Vollversion
-
-
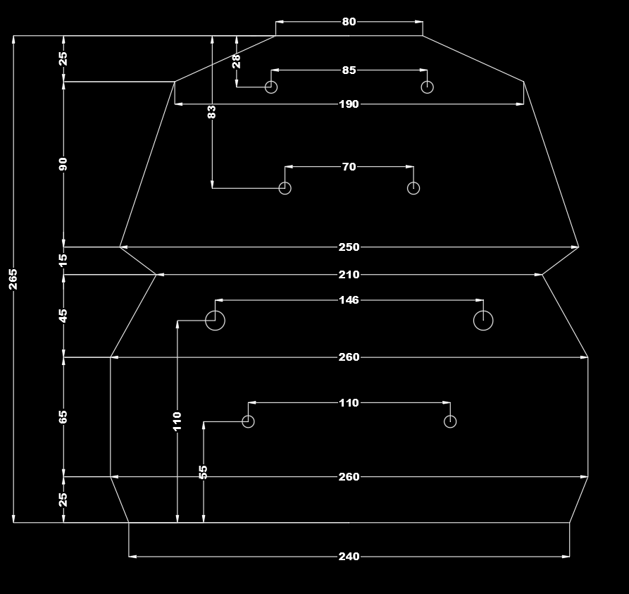
Zeichnung kann ich gern machen .....
-
Alles anzeigen
Hättest Du da vielleicht einen direkten Kontakt wo Du persönlich schon gute Erfahrungen gemacht hast ?
Hab da mit Onlinefirmen leider keine persönliche Erfahrung , da ich konstruktiv im Theaterbereich arbeite und ich solche Sachen bei Firmen in meinem Umfeld ( Wien ) machen lasse .... nix online
- ich weiß aber, dass es da einige Anbieter gibt ..... -
Du könntest das Teil Lasern oder Wasserstrahlschneiden lassen - es gibt da online Firmen die das recht kostengünstig anbieten.
Falls Du da ne dxf Zeichnung brauchst, kann ich dir die gerne schnell machen und dir die Datei schicken

LG
GIG
-
-
......weil grad Zeit ist
....also ich möchte schon vertrauen können, dass ich in jeder Situation nur dann beschleunige, wenn ICH das will.... Fast OT:
Ich hatte - aus anderen Gründen ( wie sich später herausstellte: klemmender Seilzug ) mal die Situation, dass ich das "Gas" plötzlich nicht mehr schließen konnte.
War , weil natürlich unverhofft , auch nicht lustig... klar... erst mal Kupplung ziehen .... aber dann "schießt" der Motor weil ja ohne Last) in
den Drehzahlbegrenzer .... und dann mit beiden Händen am Lenker schnell mal den Notausschalter
rechts finden.... und das in der Kurve..... war schon ne Challange, die man mögen muss

GIG
-